от 4 190 000 ₽
Модульный дом растет вместе с вами! Когда захотите расширить пространство, просто установите дополнительные модули.

Сделайте дом больше за несколько часов без сложных проектов. Отличный вариант для всех, кто ценит свое время и стремится к развитию.

Модульный дом
Серия «дом»

Оформите покупку этого жилья по льготной или сельской ипотеке. Это решение для тех, кто ценит современный комфорт. Готовый дом для жизни уже ждет вас! Без переплат.
Интерьер
Модульные дома устанавливаются с полной отделкой из современных экологичных материалов. Они устойчивы к износу и позволяют создавать уникальный интерьер с помощью мебели, текстиля и декора.
экстерьер
Модульные дома — это сочетание классики и современных тенденций как внутри, так и снаружи.

На верандах и на фоне панорамных окон получаются отличные фотографии, да и просто приятно любоваться фасадами из натуральных материалов.

Расширить модульный дом можно дополнительными типовыми модулями, которые точно будут сочетаться с постройками, которые уже стоят на вашем участке. Дом всегда будет выглядеть цельным, задуманным в едином минималистичном стиле из одних и тех же материалов.
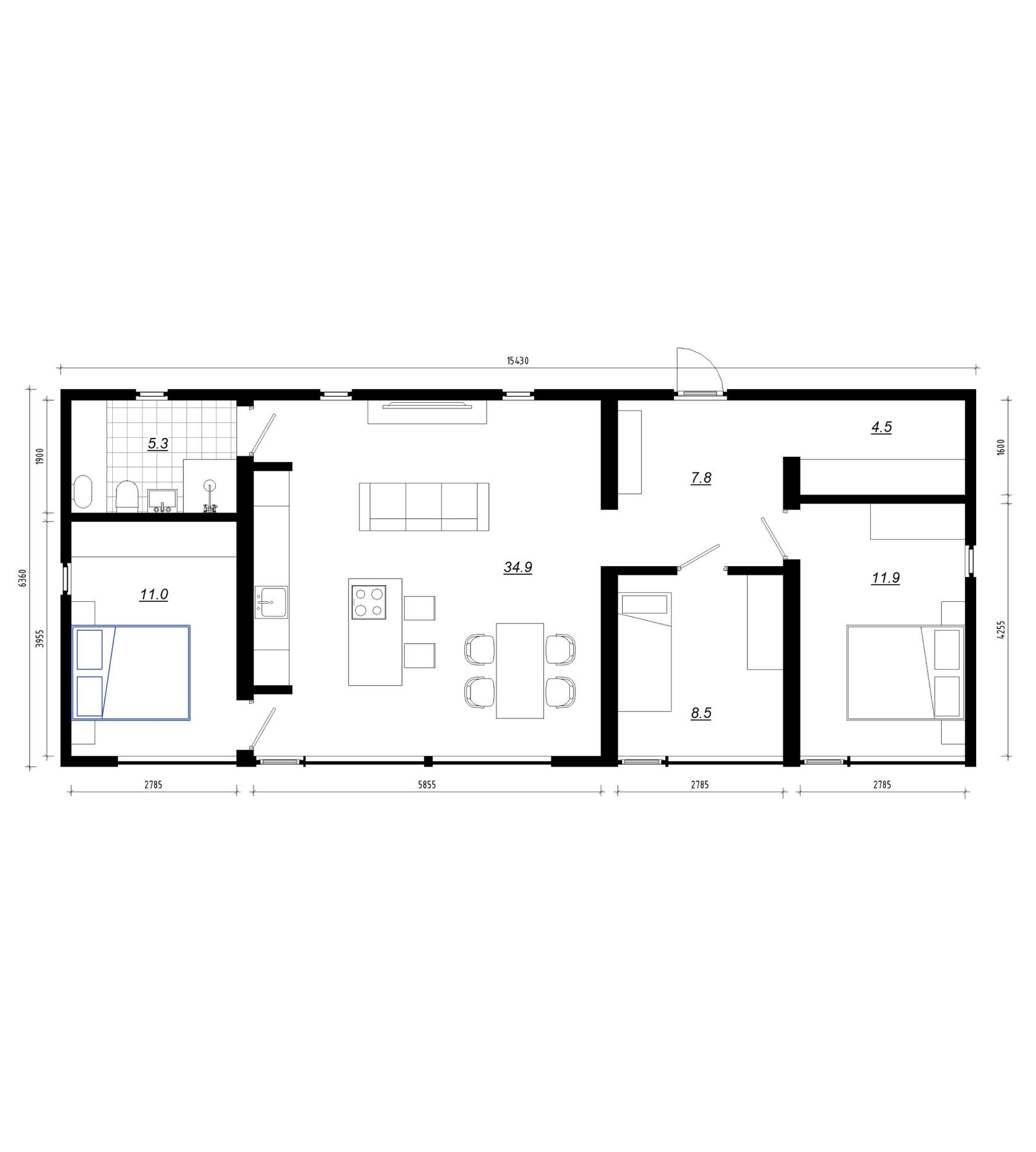
Модульный начинается с базовой планировки из трех модулей с душевой и зоной для кухни, отдельной спальней и гостиной-студией. Вы всегда можете буквально вырастить собственный дом, сделав его уютнее, функциональнее и интереснее.

планировки и комплектации домов

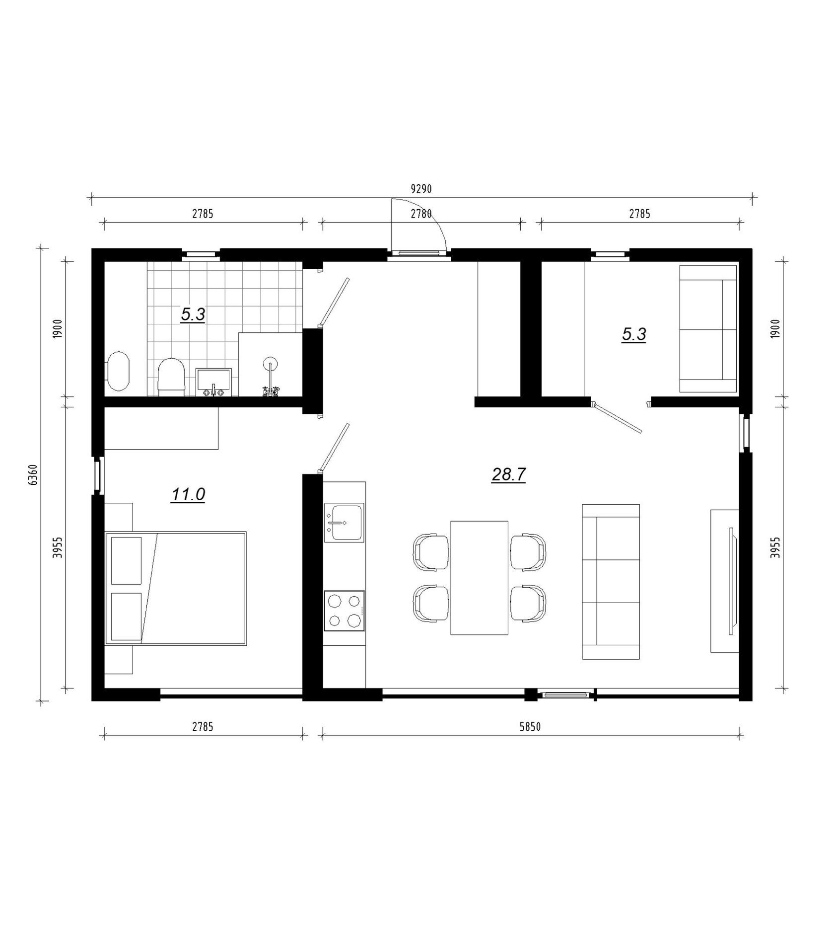
Модульный дом «Легко 50» с отдельной спальней
Площадь: 50 м² — Отдельная спальня с панорамным окном, просторная гостиная-кухня, современный санузел с душевой кабиной и прихожая со встроенным гардеробом создают гармоничное пространство для жизни.

Преимущества:
  • Не требует сложного фундамента — подходит для большинства участков
  • Энергоэффективность — современные материалы экономят ваши деньги
  • Легко расширить — при необходимости можно добавить модули

Отличное решение для семей, людей, планирующих переезд за город! А также тех, кто ищет доступное и комфортное жилье без лишних затрат.
от 4 000 000
р.
Модульный дом «Легко 50» со спальней и кабинетом
Площадь: 50 м² — изолированный кабинет создаст идеальные условия для концентрации, а спальня гарантирует полноценный отдых. Если не готовы вкладываться в большую недвижимость – наш модульный дом это компактное решение для вас!.

Преимущества:
Доступная альтернатива традиционному жилью. Хотите собственное пространство без переплат? Компактная планировка и готовность к эксплуатации делают этот дом выгодным решением.

Подходит для предпринимателей, фрилансеров, работающих удаленно!
Для вас и всех ценителей удобства и тишины в загородной жизни!
от 4 260 000
р.
Модульный дом «Легко 67» с двумя спальнями
Площадь: 67 м² — две изолированные спальни обеспечат комфорт каждому. Больше не нужно жертвовать личным пространством!

Преимущества:
  • Модульный дом требует минимального ухода и готов к заселению сразу после установки.
  • Доступно оформление по льготной ипотеке
  • Усиленное утепление и качественные материалы для российского климата

Чистовая отделка и коммуникации позволяют переехать сразу после монтажа.
от 5 590 000
р.
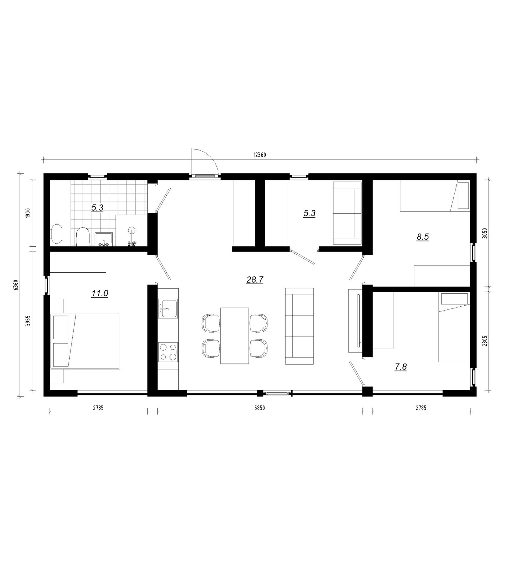
Модульный дом «Легко 67» с тремя спальнями
Площадь: 67 м² — функциональное пространство для размещения одного или двух гостей.

Для кого этот дом:
  • Семьи с двумя и более детьми
  • Те, кто любит принимать гостей с ночёвкой
  • Ценители загородного отдыха без компромиссов

Мечтаете о доме без долгого ремонта? Наш дом полностью укомплектован — от мебели до коммуникаций. Вам остаётся только переехать!

от 5 590 000
р.
Модульный дом «ЛЕГКО 67» с тремя спальнями и кабинетом
Площадь: 67 м² — три спальни и отдельный кабинет позволяют комфортно разместить большую семью, организовать рабочее пространство и место для отдыха.

Идеальное решение для:
  • Семей с детьми, ценящих личное пространство
  • Удаленных работников, нуждающихся в профессиональной среде
  • Людей, создающих многопоколенческое жилье за городом

«ЛЕГКО ДОМ 67» с тремя спальнями и кабинетом – отличный вариант для семей с детьми, людей, работающих удалённо, и тех, кто хочет больше личного пространства. Создайте свой уютный уголок, где каждому найдется место!
от 5 680 000
р.
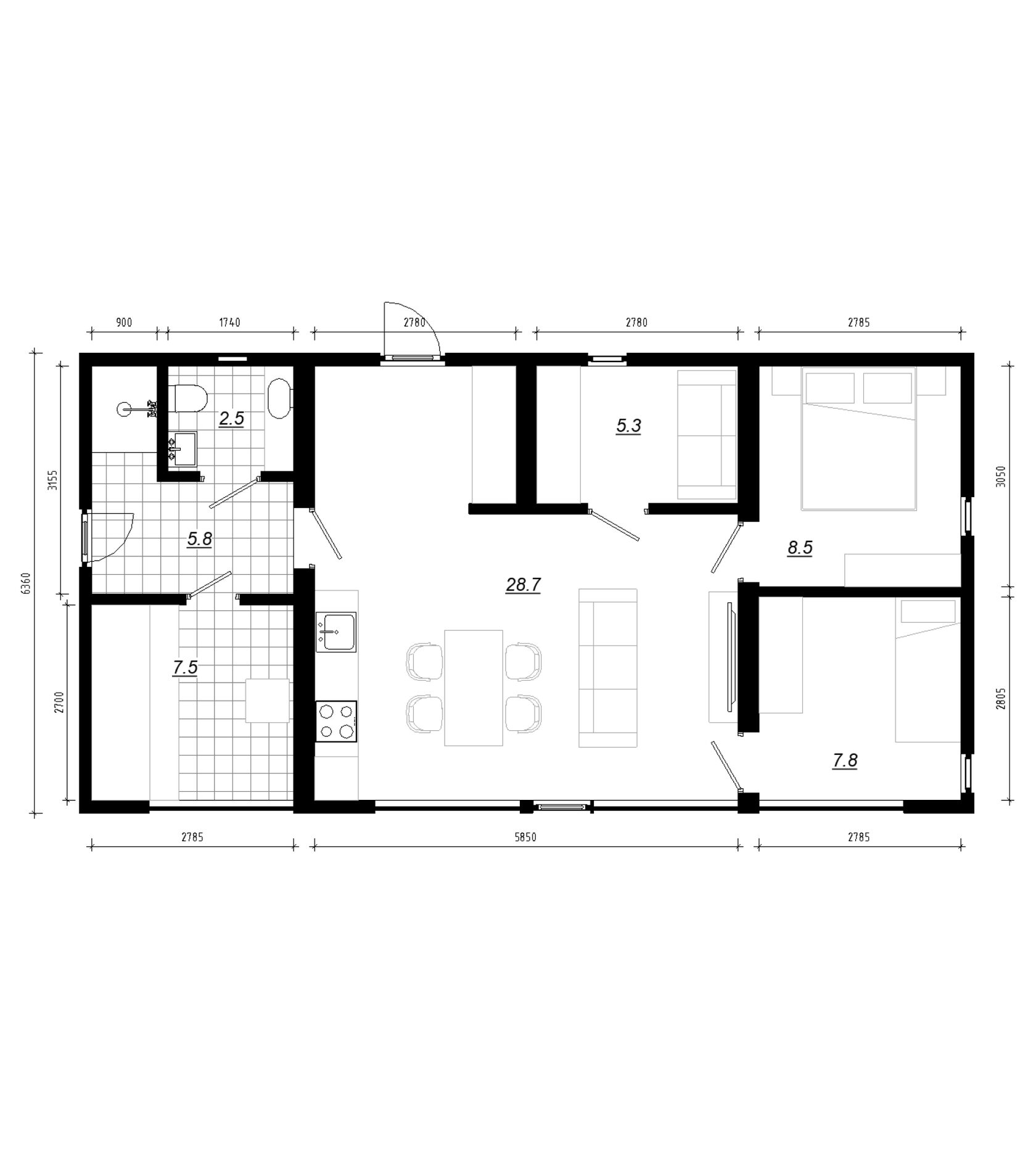
Модульный дом «ЛЕГКО 67» с двумя спальнями и баней
Площадь: 67 м² — две просторные спальни обеспечивают удобство для семьи или гостей, а собственная баня станет местом отдыха после насыщенного дня.

Преимущества:
  • Расслабление и здоровье без необходимости выходить на улицу
  • Отдельные спальни, просторная гостиная и уютная кухня
  • Экологичные материалы – безопасные и энергоэффективные решения для комфортного проживания

«ЛЕГКО ДОМ 67» подойдет для семей, любителей банных традиций и тех, кто хочет создать загородный оазис уюта. Живите с комфортом, отдыхайте с удовольствием!
от 6 090 000
р.
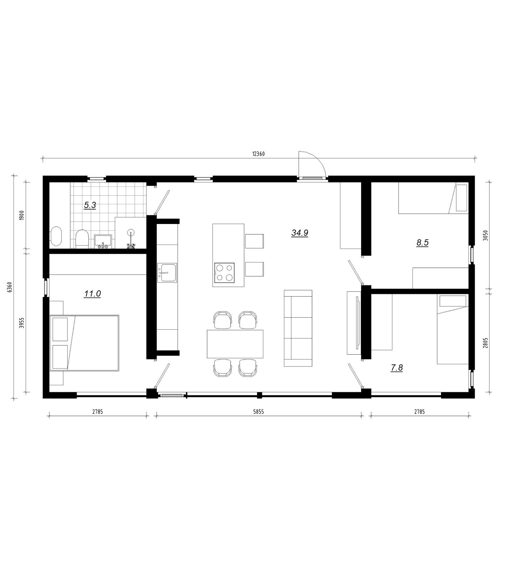
Модульный дом «ЛЕГКО 84» с тремя спальнями и кладовой
Площадь: 84 м² — современное и удобное разделение зон для отдыха, работы и хранения.

Преимущества:
«ЛЕГКО Дом 84» отлично подойдет для семей с детьми, тех, кто ценит порядок и удобное хранение вещей, а также для людей, которым нужно больше личного пространства без компромиссов. Три спальни обеспечивают личное пространство каждому члену семьи, а отдельная кладовая помогает поддерживать порядок в доме, избавляя от лишних вещей на виду.

Создайте уютный дом, в котором всё продумано до мелочей!
от 6 400 000
р.
Модульный дом «ЛЕГКО 84» с мастер-спальней

Площадь: 84 м² — мастер-спальня – главная особенность этого дома, объединяющая личное пространство с отдельной ванной комнатой и гардеробной.

Преимущества:
Отличный выбор для семейных пар, ценителей личного комфорта и тех, кто хочет наслаждаться удобством мастер-спальни в загородном доме. Создайте пространство, где уют, стиль и функциональностьсоединяются в идеальный баланс!

Уединённое пространство с собственной ванной и гардеробной. Комфортные зоны отдыха, просторная кухня и уютная гостиная.
от 6 580 000
р.
Закрыть
Веранда с навесом
22 000 руб./м² 
Уютное место для отдыха на свежем воздухе в любую погоду
Терраса
10 000 руб./м² 
Открытая площадка для приятного времяпрепровождения на природе
Москитная сетка на окно
3 000 руб./шт.
Защита от насекомых при свободной циркуляции воздуха
Москитная дверь
12 000 руб./шт.
Входите и выходите без страха перед комарами и мошкарой
Рулонная штора на окно / дверь
12 000 руб./шт.
Комфортный уровень света и полная приватность в одно движение
Рулонная штора на витраж
30 000 руб./шт.
Элегантное затемнение панорамных окон для уюта и прохлады
Кондиционер
80 000 руб./шт.
Идеальный микроклимат в вашем доме в любое время года
Приточная вентиляция Бризер
25 000 руб./шт.
Свежий и чистый воздух в доме при закрытых окнах
Уличный кран для полива
10 000 руб./шт.
Удобный доступ к воде для сада, огорода и уборки
Уличные светильники
4 000 руб./шт.
Освещение территории для безопасности и создания атмосферы
Крыльцо-лестница 1200х600
20 000 руб./шт.
Аккуратное и удобное завершение входа в ваш дом
Дровяная печь
150 000 руб./шт.
Настоящее тепло и особая атмосфера живого огня
Фильтр воды
8 000 руб./шт.
Чистая и безопасная вода прямо из-под крана
Кухонный гарнитур
от 60 000 руб./шт.
Готовое функциональное решение для вашей кухни
Гардеробный шкаф
от 45 000 руб./шт.
Продуманная система хранения для порядка в доме
Инженерный шкаф
от 45 000 руб./шт.
Аккуратное размещение всей коммуникационной техники
Wi-Fi модуль отопления
5 000 руб./шт.
Управляйте температурой дома удаленно со смартфона
Сетка от грызунов
2 000 руб./м² 
Надежная защита подполья от нежелательных гостей
Гигиенический душ
20 000 руб./шт.
Элемент повышенного комфорта и чистоты в санузле
Подогрев водостоков
14 000 руб./шт.
Защита от образования сосулек и наледи зимой
Система защиты от протечек
19 000 руб./шт.
Спокойствие за ваш дом: автоматически перекроет воду при аварии
Вайтбокс
Лайт
Комфорт
Фасад
Окна ПВХ
Окна Дерево
Панорамное остекление
Фасад Планкен
Фасад Комбинированный, металл + планкен
Напольное покрытие кварцвинил
Напольное покрытие линолеум
Отопление - настенные конвектора
Межкомнатные двери
Отделка стен - белая панель
Отделка потолка - белая панель
Система канализации
Система водопровода
Светильники, розетки, выключатели
Санузел Лайт
унитаз компакт, душевая кабина
умывальник подвесной, бойлер эмаль
Санузел Комфорт
унитаз инсталляция, стены кварцвинил
душевой гарнитур, умывальник тумба, бойлер нержавейка, 
полотенцесушитель
Теплый пол в ванной комнате
Теплый пол в жилых помещениях
Вытяжка санузел, кухня
Приточные клапана вентиляции
Наши дома можно приобрести в ипотеку на особых условиях благодаря нашей аккредитации в ведущих банках.

От 3% — для покупки дома в сельской местности
От 6% — для семей с детьми
От 4% — для IT-специалистов

купить дом в ипотеку выгоднее, чем квартиру

Пройдите короткий тест и рассчитайте стоимость модульного дома ЛЕГКО

Ответьте на 5 ключевых вопросов
Здесь мы собрали ответы на одни из самых популярных вопросов о модульных домах. Если не нашли то, что искали — просто напишите нам.

Частые вопросы о модульных домах

Арсений Куряев - главный архитектор и cооснователь компании ЛЕГКО
Дом в выбранной комплектации. Это полностью готовый продукт, который вы получаете после заказа. Его можно сравнить с покупкой автомобиля: вы выбираете модель (план и размер), а затем комплектацию (уровень комфорта и оснащения).

Услуги бригады по установке и подключению дома. Сборка готовых блоков в единую конструкцию на заранее подготовленном фундаменте с помощью крана. Герметизация стыков. Проверка всех систем, устранение недочетов.