от 1 480 000 ₽
Компактный и доступный модульный дом, который идеально подойдёт как для дачи, так и для постоянного проживания.

Благодаря небольшим размерам и современному производству его цена значительно ниже классического строительства, а оформить покупку можно в ипотеку или рассрочку.

Модульный дом
Серия «Модуль»

Дом доступен для участия в программах льготной и сельской ипотеки, что делает его отличным решением для тех, кто хочет быстро и недорого получить готовое жильё под ключ.
Интерьер
Внутренняя отделка выполнена из полностью натуральных материалов: дерева и лакированной фанеры.

На полу — практичная виниловая плитка, а в санузле —керамогранит.

Через панорамные окна можно любоваться видом — стеклопакеты с фильтрующим напылением запускают в дом свет и удерживают тепло.
экстерьер
Модульные дома сделаны в стиле минимализм — это практично и никогда не выходит из моды. Отделка фасада из хвойного планкена отлично вписывается в окружающий ландшафт и не нарушает природную гармонию.

На одном участке можно поставить несколько наших модульных домов. При этом у каждого из них будет свое пространство. Так получится обеспечить приватность, которую сейчас особенно ценят любители загородного отдыха.

Выбирайте цвет модульного дома, который больше всего вам понравится, — в нашем каталоге есть несколько натуральных оттенков.
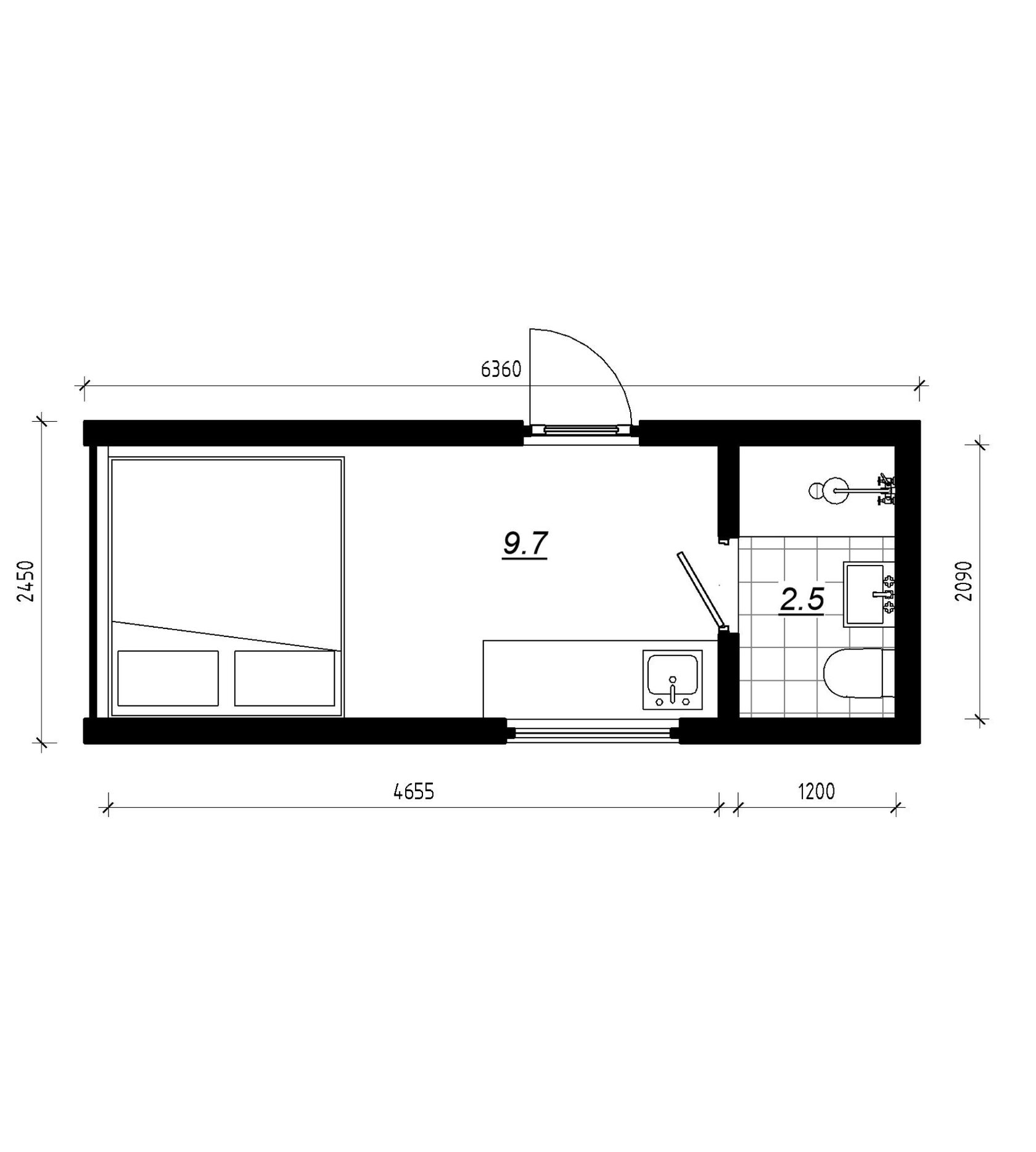
Модульная студия условно делится на хозяйственную зону с кухней и душевой, и спальную зону В доме с удобством разместятся два-три человека.

При монтаже останется только подключить модульный дом к коммуникациям на участке.

планировки и комплектации домов

Модульный дом ЛЕГКО «Студия 16»
Площадь: 16 м² — эргономичное пространство для жизни и отдыха с максимальным комфортом.

Преимущества:
  • Готов к заселению сразу после установки
  • Монтаж занимает всего 1 день
  • Усиленный каркас и качественные материалы
  • Рассчитан на круглогодичную эксплуатацию

Оптимальное решение для дачи, гостевого дома, офиса или коммерческой аренды. Идеальное сочетание цены и качества!
от 1 730 000
р.
Модульный дом ЛЕГКО «Студия 18»
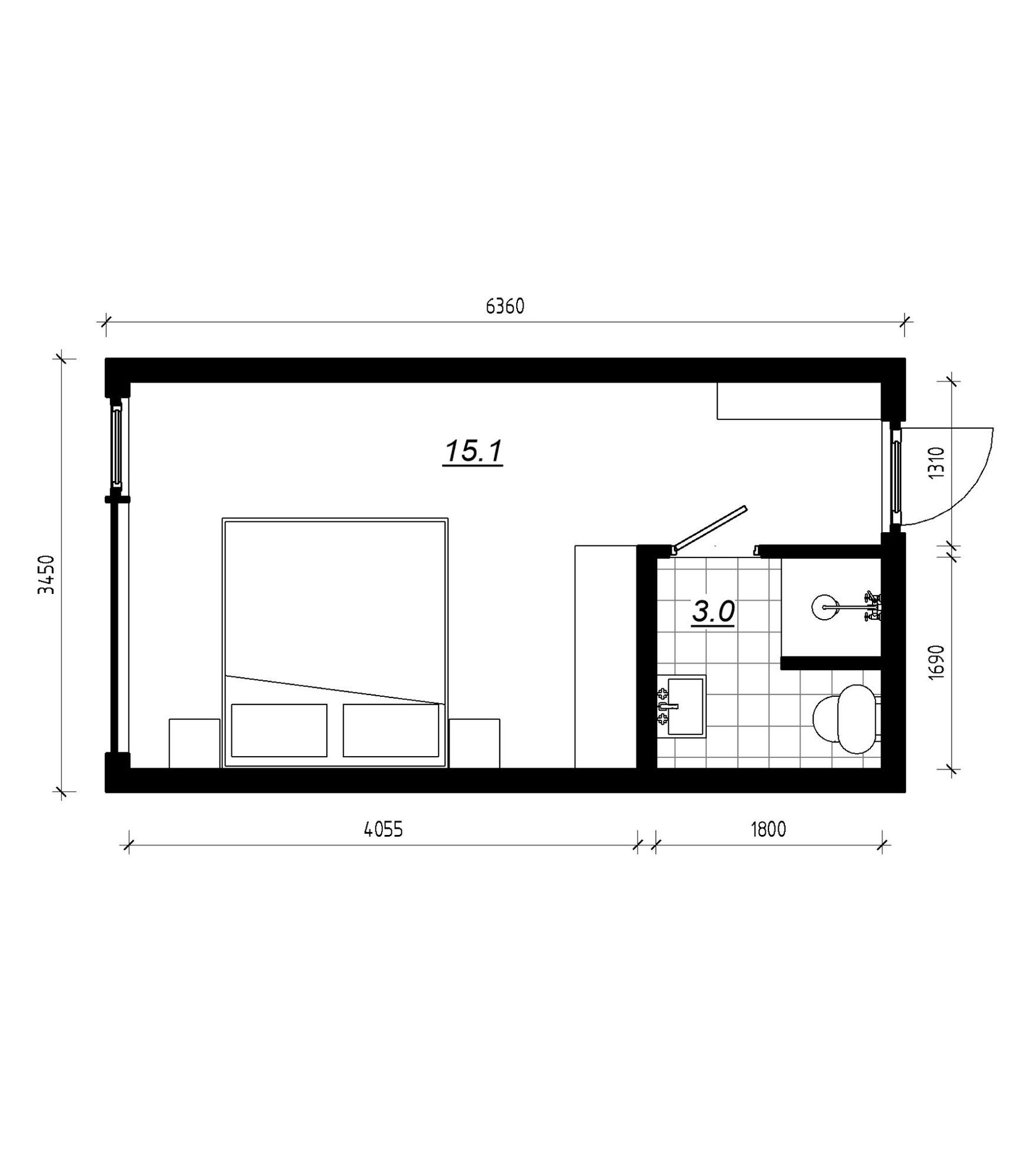
Площадь: 18 м² — сбалансированное пространство для жизни с продуманной организацией.

Преимущества:
  • Готов к заселению через 1 день после начала монтажа
  • Установка без капитального фундамента
  • Прочная конструкция и качественные материалы
  • Рассчитан на всесезонное использование

Современное решение для проживания. Подходит для гостиниц, баз отдыха и коммерческой аренды.
от 1 900 000
р.
Модульный дом ЛЕГКО «Отельный номер»
Площадь: 18 м² — функциональное пространство для размещения одного или двух гостей.

Преимущества:
  • Готов к заселению сразу после установки
  • Монтаж занимает 1 день без капитального фундамента,
  • Качественное утепление для комфорта в любое время года,
  • Энергоэффективные материалы снижают затраты на эксплуатацию.

Готовое решение для гостиниц, glamping-зон и коммерческой аренды. Соответствует стандартам размещения и легко интегрируется в существующую инфраструктуру.
от 1 900 000
р.
Модульный дом Легко «Студия 22»
Площадь: 22 м² — сбалансированное пространство для полноценного проживания.

Планировка:
  • Изолированная спальня с организацией системы хранения
  • Совмещенная гостиная с кухонным блоком и обеденной зоной
  • Санузел с готовыми подключениями водоснабжения и канализации

Все конструкции сертифицированы согласно требованиям для объектов временного размещения.
от 2 470 000
р.
Модульный дом Легко «Студия 25»
Площадь: 25 м² — комфортное современное пространство для постоянного проживания.

Планировка:
  • Изолированная спальня с естественным освещением
  • Просторная гостиная с полноценной кухонной зоной
  • Санузел с готовыми подключениями коммуникаций

Готовое решение для тех, кто ценит современный дизайн, мобильность и функциональность. Идеальный баланс цены и качества!
от 2 620 000
р.
Закрыть
Веранда с навесом
22 000 руб./м² 
Уютное место для отдыха на свежем воздухе в любую погоду
Терраса
10 000 руб./м² 
Открытая площадка для приятного времяпрепровождения на природе
Москитная сетка на окно
3 000 руб./шт.
Защита от насекомых при свободной циркуляции воздуха
Москитная дверь
12 000 руб./шт.
Входите и выходите без страха перед комарами и мошкарой
Рулонная штора на окно / дверь
12 000 руб./шт.
Комфортный уровень света и полная приватность в одно движение
Рулонная штора на витраж
30 000 руб./шт.
Элегантное затемнение панорамных окон для уюта и прохлады
Кондиционер
80 000 руб./шт.
Идеальный микроклимат в вашем доме в любое время года
Приточная вентиляция Бризер
25 000 руб./шт.
Свежий и чистый воздух в доме при закрытых окнах
Уличный кран для полива
10 000 руб./шт.
Удобный доступ к воде для сада, огорода и уборки
Уличные светильники
4 000 руб./шт.
Освещение территории для безопасности и создания атмосферы
Крыльцо-лестница 1200х600
20 000 руб./шт.
Аккуратное и удобное завершение входа в ваш дом
Дровяная печь
150 000 руб./шт.
Настоящее тепло и особая атмосфера живого огня
Фильтр воды
8 000 руб./шт.
Чистая и безопасная вода прямо из-под крана
Кухонный гарнитур
от 60 000 руб./шт.
Готовое функциональное решение для вашей кухни
Гардеробный шкаф
от 45 000 руб./шт.
Продуманная система хранения для порядка в доме
Инженерный шкаф
от 45 000 руб./шт.
Аккуратное размещение всей коммуникационной техники
Wi-Fi модуль отопления
5 000 руб./шт.
Управляйте температурой дома удаленно со смартфона
Сетка от грызунов
2 000 руб./м² 
Надежная защита подполья от нежелательных гостей
Гигиенический душ
20 000 руб./шт.
Элемент повышенного комфорта и чистоты в санузле
Подогрев водостоков
14 000 руб./шт.
Защита от образования сосулек и наледи зимой
Система защиты от протечек
19 000 руб./шт.
Спокойствие за ваш дом: автоматически перекроет воду при аварии
Вайтбокс
Лайт
Комфорт
Фасад
Окна ПВХ
Окна Дерево
Панорамное остекление
Фасад Планкен
Фасад Комбинированный, металл + планкен
Напольное покрытие кварцвинил
Напольное покрытие линолеум
Отопление - настенные конвектора
Межкомнатные двери
Отделка стен - белая панель
Отделка потолка - белая панель
Система канализации
Система водопровода
Светильники, розетки, выключатели
Санузел Лайт
унитаз компакт, душевая кабина
умывальник подвесной, бойлер эмаль
Санузел Комфорт
унитаз инсталляция, стены кварцвинил
душевой гарнитур, умывальник тумба, бойлер нержавейка, 
полотенцесушитель
Теплый пол в ванной комнате
Теплый пол в жилых помещениях
Вытяжка санузел, кухня
Приточные клапана вентиляции
Наши дома можно приобрести в ипотеку на особых условиях благодаря нашей аккредитации в ведущих банках.

От 3% — для покупки дома в сельской местности
От 6% — для семей с детьми
От 4% — для IT-специалистов

купить дом в ипотеку выгоднее, чем квартиру

Пройдите короткий тест и рассчитайте стоимость модульного дома ЛЕГКО

Ответьте на 5 ключевых вопросов
Здесь мы собрали ответы на одни из самых популярных вопросов о модульных домах. Если не нашли то, что искали — просто напишите нам.

Частые вопросы о модульных домах

Арсений Куряев — главный архитектор и cооснователь компании ЛЕГКО
Дом в выбранной комплектации. Это полностью готовый продукт, который вы получаете после заказа. Его можно сравнить с покупкой автомобиля: вы выбираете модель (план и размер), а затем комплектацию (уровень комфорта и оснащения).

Услуги бригады по установке и подключению дома. Сборка готовых блоков в единую конструкцию на заранее подготовленном фундаменте с помощью крана. Герметизация стыков. Проверка всех систем, устранение недочетов.