от 1 860 000 ₽
Готовое решение для всех, кто мечтает построить загородный дом для отдыха или постоянного проживания. Подходит для небольшой семьи, поместится даже на маленьком дачном участке.

Одномодульный дом отлично подходит, чтобы создать бизнес и открыть турбазу или глэмпинг.

Модульный дом
Серия «дача»

Приобретите это жильё по программе льготной или сельской ипотеки. Идеальный вариант для тех, кто ищет современное и готовое решение для жизни без лишних затрат и ожидания.
Интерьер
В модульных домах ЛЕГКО мы используем практичные и экологичные материалы.

На полу — устойчивые к износу виниловая плитка и керамогранит, на стенах — лакированная фанера. В каждом доме мы устанавливаем сантехнику и электрику.
экстерьер
Все нужное и ничего лишнего — модульные дома выглядят современно и стильно. Фасады из хвойного планкена натуральных оттенков будут актуальными всегда, вне зависимости от модных течений.

Любуйтесь видами природы через панорамные окна, делайте стильные селфи и проводите домашние фотосессии в доме и на веранде и просто каждый день радуйтесь красоте своего дома.

Простые и строгие линии, естественные текстуры и цвета отлично сочетаются с любыми элементами ландшафтного дизайна. Модульный дом станет особенным украшением вашего участка.
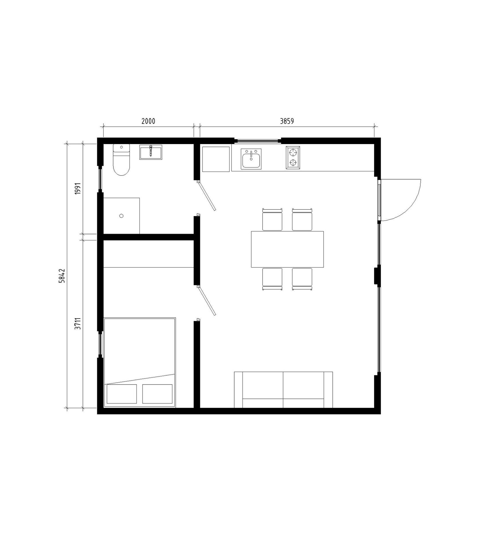
В серии «Дача» есть две разные планировки модульных домов. Они разработаны под потребности семьи: есть место, чтобы собраться вместе, и уютные уголки, где можно никому не мешать.

планировки и комплектации домов

Модульный дом Легко «Дача 34» со спальней
Площадь: 34 м² — пространство для семьи с продуманной организацией быта.

Преимущества:
  • Изолированная спальня с зоной для отдыха
  • Общая площадь с свободной планировкой зон
  • Полноценный санузел с готовыми коммуникациями

Компактное и функциональное решение для комфортного проживания! Подходящий вариант для дачи, гостевого дома, офиса, мастерской.
от 1 860 000
р.
Модульный дом Легко «Дача 34» с баней
Площадь: 34 м² — гармоничное сочетание комфорта и функциональности для загородного отдыха.

Преимущества:
  • Просторная комната отдыха с зоной для чаепитий
  • Отдельная парная с предбанником
  • Терраса для отдыха на свежем воздухе (опционально)

Идеально для круглогодичного использования в качестве гостевого комплекса, рганизации частной бани на загородном участке.
от 2 350 000
р.
Закрыть
Веранда с навесом
22 000 руб./м² 
Уютное место для отдыха на свежем воздухе в любую погоду
Терраса
10 000 руб./м² 
Открытая площадка для приятного времяпрепровождения на природе
Москитная сетка на окно
3 000 руб./шт.
Защита от насекомых при свободной циркуляции воздуха
Москитная дверь
12 000 руб./шт.
Входите и выходите без страха перед комарами и мошкарой
Рулонная штора на окно / дверь
12 000 руб./шт.
Комфортный уровень света и полная приватность в одно движение
Рулонная штора на витраж
30 000 руб./шт.
Элегантное затемнение панорамных окон для уюта и прохлады
Кондиционер
80 000 руб./шт.
Идеальный микроклимат в вашем доме в любое время года
Приточная вентиляция Бризер
25 000 руб./шт.
Свежий и чистый воздух в доме при закрытых окнах
Уличный кран для полива
10 000 руб./шт.
Удобный доступ к воде для сада, огорода и уборки
Уличные светильники
4 000 руб./шт.
Освещение территории для безопасности и создания атмосферы
Крыльцо-лестница 1200х600
20 000 руб./шт.
Аккуратное и удобное завершение входа в ваш дом
Дровяная печь
150 000 руб./шт.
Настоящее тепло и особая атмосфера живого огня
Фильтр воды
8 000 руб./шт.
Чистая и безопасная вода прямо из-под крана
Кухонный гарнитур
от 60 000 руб./шт.
Готовое функциональное решение для вашей кухни
Гардеробный шкаф
от 45 000 руб./шт.
Продуманная система хранения для порядка в доме
Инженерный шкаф
от 45 000 руб./шт.
Аккуратное размещение всей коммуникационной техники
Wi-Fi модуль отопления
5 000 руб./шт.
Управляйте температурой дома удаленно со смартфона
Сетка от грызунов
2 000 руб./м² 
Надежная защита подполья от нежелательных гостей
Гигиенический душ
20 000 руб./шт.
Элемент повышенного комфорта и чистоты в санузле
Подогрев водостоков
14 000 руб./шт.
Защита от образования сосулек и наледи зимой
Система защиты от протечек
19 000 руб./шт.
Спокойствие за ваш дом: автоматически перекроет воду при аварии
Вайтбокс
Лайт
Комфорт
Фасад
Окна ПВХ
Окна Дерево
Панорамное остекление
Фасад Планкен
Фасад Комбинированный, металл + планкен
Напольное покрытие кварцвинил
Напольное покрытие линолеум
Отопление - настенные конвектора
Межкомнатные двери
Отделка стен - белая панель
Отделка потолка - белая панель
Система канализации
Система водопровода
Светильники, розетки, выключатели
Санузел Лайт
унитаз компакт, душевая кабина
умывальник подвесной, бойлер эмаль
Санузел Комфорт
унитаз инсталляция, стены кварцвинил
душевой гарнитур, умывальник тумба, бойлер нержавейка, 
полотенцесушитель
Теплый пол в ванной комнате
Теплый пол в жилых помещениях
Вытяжка санузел, кухня
Приточные клапана вентиляции
Наши дома можно приобрести в ипотеку на особых условиях благодаря нашей аккредитации в ведущих банках.

От 3% — для покупки дома в сельской местности
От 6% — для семей с детьми
От 4% — для IT-специалистов

купить дом в ипотеку выгоднее, чем квартиру

Пройдите короткий тест и рассчитайте стоимость модульного дома ЛЕГКО

Ответьте на 5 ключевых вопросов
Здесь мы собрали ответы на одни из самых популярных вопросов о модульных домах. Если не нашли то, что искали — просто напишите нам.

Частые вопросы о модульных домах

Арсений Куряев — главный архитектор и cооснователь компании ЛЕГКО
Дом в выбранной комплектации. Это полностью готовый продукт, который вы получаете после заказа. Его можно сравнить с покупкой автомобиля: вы выбираете модель (план и размер), а затем комплектацию (уровень комфорта и оснащения).

Услуги бригады по установке и подключению дома. Сборка готовых блоков в единую конструкцию на заранее подготовленном фундаменте с помощью крана. Герметизация стыков. Проверка всех систем, устранение недочетов.